Trouville-sur-mer
Manoir de Hennequeville
Patrimoine remarquable
Restructuration lourde
Création de logements collectifs et individuels
Maître d’ouvrage :
François Ier Rénovation
Mission complète
Chantier en cours
Montant des travaux : 2 M € HT
Etudes : 2019 - 2022
Chantier 2022-2024
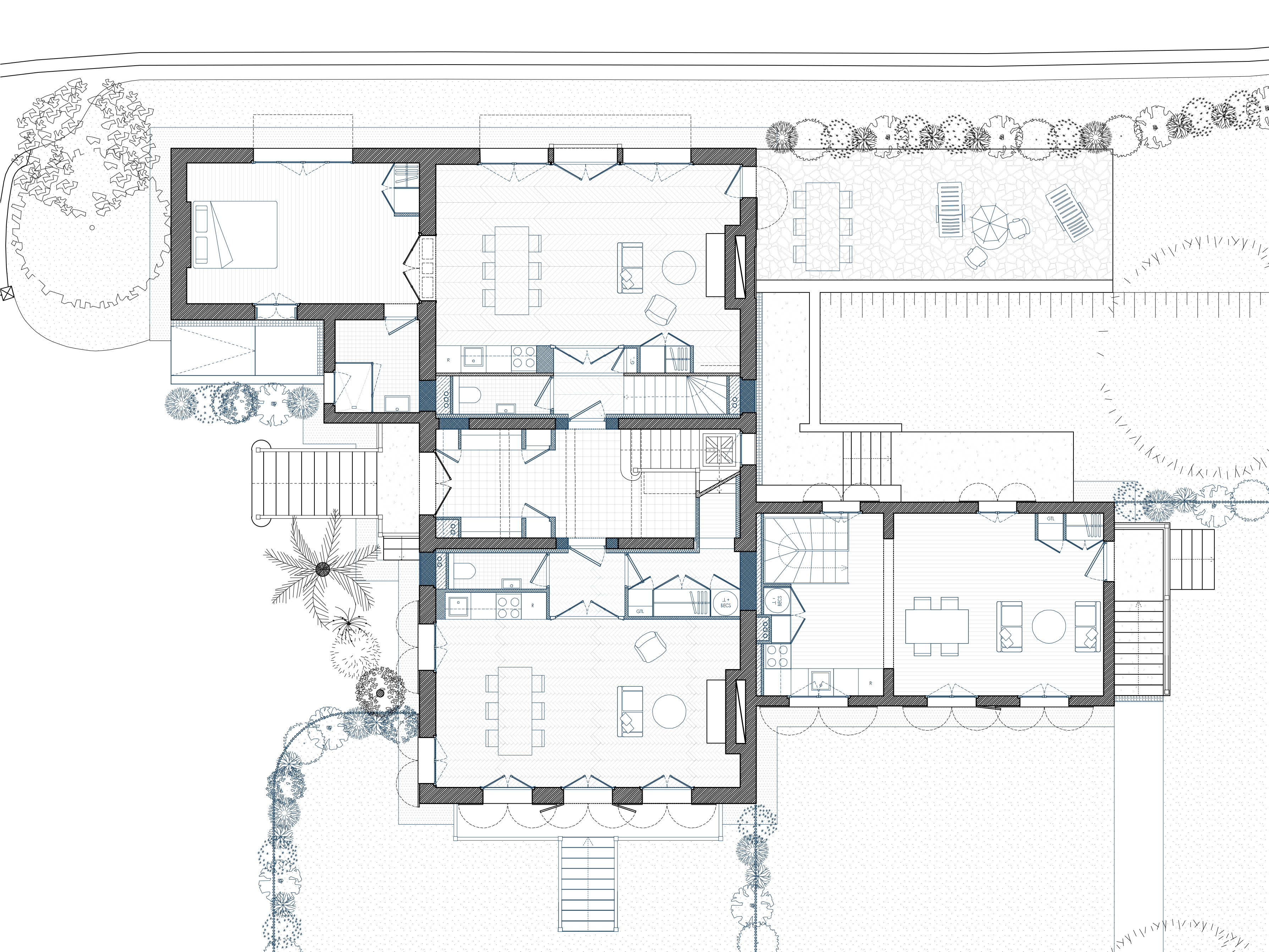
Le manoir de Hennequeville est situé sur le plateau dominant Trouville-sur-Mer et la Manche. Il est construit au début du XXe siècle en béton dans le style anglo-normand alors privilégié dans la région. Il est représentatif de l'architecture normande de la Belle Epoque et est à ce titre protégé dans le cadre de l'AVAP de la commune.
Le projet prévoit la création d'un ensemble immobilier collectif et individuel dans le manoir et sa dépendance. Il s'attache à la restauration des bâtiments, la préservation de leurs caractéristiques patrimoniales et l'aménagement de logements qualitatifs dans le respect de l'existant.
Le manoir est divisé en six appartements de standing respectant les dispositions existantes. Ils bénéficient tous d'un accès à l'extérieur et de vues sur la mer et sur le parc du domaine. La dépendance fait l'objet d'une réhabilitation lourde en vue d'accueillir des maisons mitoyennes.
Un soin tout particulier est apporté à l'aménagement paysager de l'ensemble, afin de respecter le caractère bocager et naturel de son environnement.
Partenaires :
Economiste : David Gally
BET structure : Nicolas Perifan
BET Fluides : GT2i
Paysagiste : Giulio Giorgi
© Marie Béniguel Architecte du Patrimoine 2024
Mentions légales
