Paris (75)
Siège de l’OPPIC
Monument Historique Inscrit
Diagnostic patrimonial
Maître d’ouvrage : OPPIC
Mission AMO
Etude livrée Montant des travaux : NC
Etudes 2021-2022
L’OPPIC, opérateur immobilier du ministère de la Culture, cherche aujourd’hui à implanter un nouveau siège dans le Xve arrondissement de Paris, alliant patrimoine et architecture contemporaine.
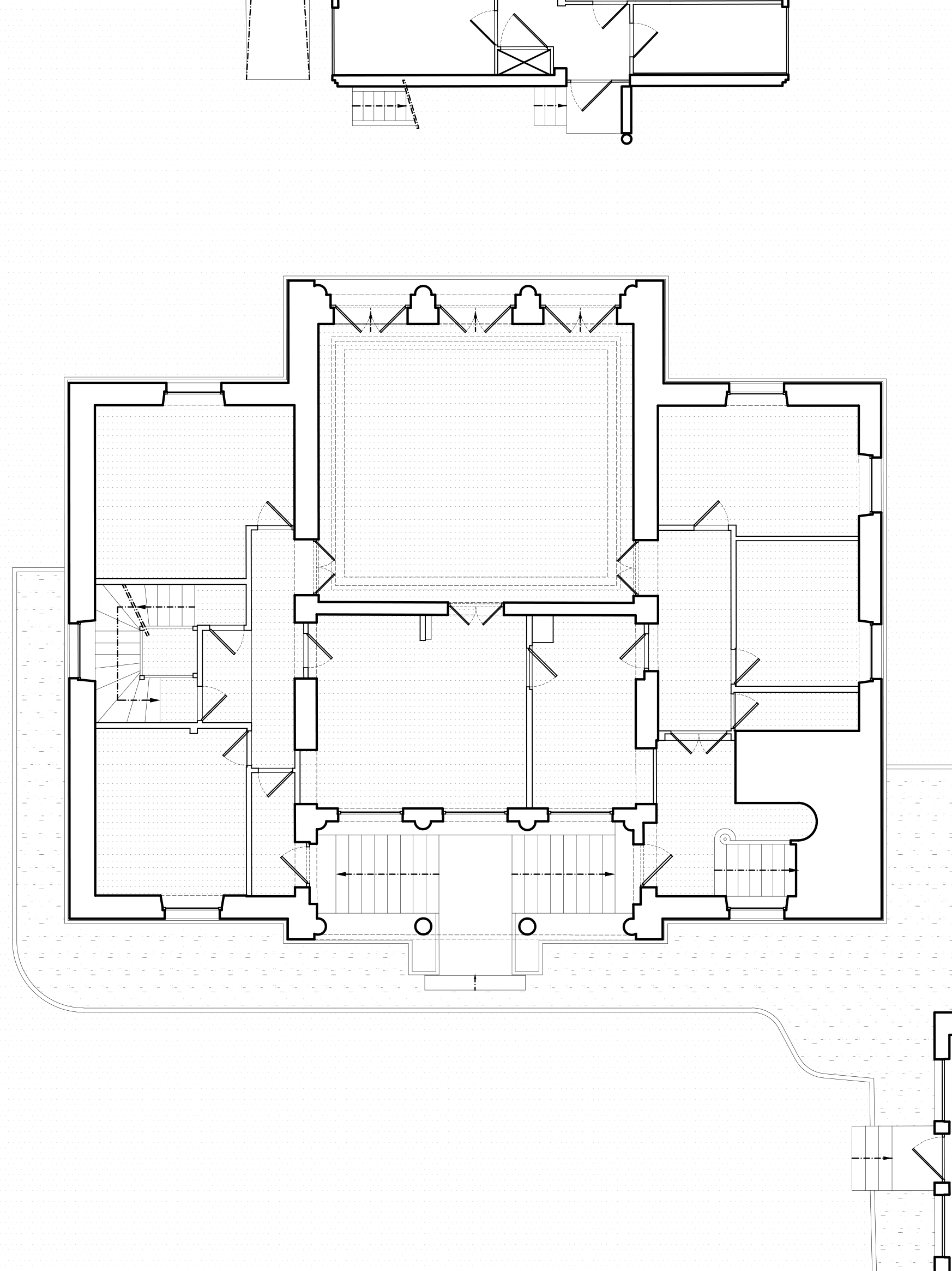
Le site choisi, situé avenue du Maine au pied de la tour Montparnasse, est un site complexe, qui s’est constitué depuis le milieu du XIXe siècle. C’est d’abord un hôtel particulier construit dans les année 1830, et son parc à la française qui l’entoure. Au fil des décennies et de l’urbanisation du quartier, parcelle a été allotie et a accueilli les ateliers de l’usine Cavaillé-Coll, puis le siège de ce qui deviendra l’école AgroParisTech. Au milieu de ce site dense et complexe, l’hôtel particulier des années 1830 est encore présent et inscrit à l’inventaire supplémentaire des monuments historiques.
Dans le cadre de l’établissement du concours de maîtrise d’œuvre, l’agence a accompagné la maîtrise d’ouvrage dans l’analyse patrimoniale, sanitaire et structurelle de l’ancien hôtel. Ce rapport d’analyse a permis l’établissement de diagnostics précis et exhaustifs qui alimentent les projets des équipes répondant actuellement au concours de maîtrise d’œuvre.
© Marie Béniguel Architecte du Patrimoine 2024
Mentions légales
